Детали и работа
Набор деталей полностью зависит от дизайна, который вы выбрали ранее. Самую обычную вешалку на стену можно сделать при помощи простой доски и нескольких винтов, может гвоздей.

Примитивную конструкцию нужно прикрепить к стене, и вот – вешалка готова. Вариант простой, но больше подойдет для амбара, нежели для квартиры.

Раз уж мы делаем настенную вешалку в прихожую нашего дома, то и выглядеть она должна подобающим образом. Возьмем предыдущий вариант и подключим немного творческого воображения.


- Полки для обуви своими руками: обзор лучших идей и пошаговое описание как построить обувную полку (85 фото и видео)
-
Кресло мешок своими руками — подробный мастер-класс как сшить правильно удобное кресло (75 фото)
-
Сундук своими руками — как сделать из коробки, бумаги и дерева красивую и стильную поделку (80 фото)
Дальше нужно решить вопрос с крючками. Мы можем пойти в магазин и купить готовый вариант, благо почти все они достаточно дешевые, или же сделать что-то самостоятельно.

Если с первым случаем все понятно, то во втором снова включаем фантазию. Берем достаточно простые, но длинные болты. Теперь в доске дрелью нужно сделать небольшие отверстия, которые будут по диаметру чуть меньше, чем наш болт – туда мы будем вкручивать импровизированные крючки.

Далее нужно покрасить болты в интересный вам цвет, что во многом зависит от того, красили ли вы доску.

С доской, покрытой лаком, отлично будут сочетаться окрашенный матовой черной краской болты. Размешать их можно не в один уровень, а достаточно хаотично. В итоге вы получаете оригинальную настенную вешалку ручной работы.
Полноценная гардеробная вешалка из дерева
Как сделать вешалку для одежды своими руками, которая не будет уступать магазинным? Эта инструкция поможет сделать стойку «на века» из натурального дерева.
Для нее понадобится:
- 2 бруса 40х40.
- Черенок для установки перекладины.
- Упаковка саморезов по дереву.
- Пила по дереву.
- Стусло (желательно).
- Угольная линейка.
- Дрель со сверлами по дереву.
- Отвертка.
Когда все готово, можно приступать к сборке:
1. Из брусков необходимо вырезать необходимые детали, в соответствии с чертежом.

2. Боковые ребра пилятся под 45 градусов, чтобы правильно стыковаться.

3. Остается только соединить все детали между собой. Чтобы дерево не лопнуло, необходимо заранее просверлить отверстие под саморезы.

Уже в сборе вешалку необходимо покрыть толстым слоем лака. Так как на нее будет вешаться верхняя одежда, в том числе и мокрая, дерево может заразиться плесенью. Рекомендуется также покрыть антипиренами и антисептиком.
Фото вешалок своими руками


















































https://youtube.com/watch?v=BVVBP34_Qos
Также рекомендуем просмотреть:
- Молды своими руками
- Сердечко своими руками
- Воротник своими руками
- Подснежники своими руками
- Чехол для телефона своими руками
- Кольцо своими руками
- Ангел своими руками
- Космос своими руками
- Букет своими руками
- Карандашница своими руками
- Цветы из гофрированной бумаги
- Коробка своими руками
- Нарциссы из бумаги
- Чехол для очков
- Кактус своими руками
- Цветы из атласных лент
- Кошелек своими руками
- Бусины своими руками
- Лепка из полимерной глины
- Жгут из бисера
- Кулоны своими руками
- Пенал своими руками
- Техника батик
- Заколки своими руками
- Макраме
- Клатч своими руками
- Ключница своими руками
- Фрукты из бумаги
- Звезда своими руками
- Куклы из полимерной глины
- Браслет из полимерной глины
- Украшения из эпоксидной смолы
- Брошь своими руками
- Игольница своими руками
- Банты своими руками
- Коврики своими руками
- Абажур своими руками
- Весенние поделки своими руками
- Картины своими руками
- Букет из конфет
- Заплатки на джинсы
- Ежик своими руками
- Амигуруми крючком
- Радуга своими руками
- Кольца для салфеток
- Колье своими руками
- Косметика своими руками
- Кашпо своими руками
- Кружка из полимерной глины
- Календарь своими руками
- Аппликация своими руками
- Серьги из бисера
- Канзаши своими руками
- Конверт своими руками
Помогите проекту, поделитесь в соцсетях 😉
Стильные решения для самостоятельного изготовления
Оригинальная вешалка может получиться не только из дорогостоящих материалов, но и из подручных средств. Можно воспользоваться старым торшером, убрав с него лишние элементы в виде абажура и проводов, а затем прикрутив к стойке крючки. В результате получается простая и незамысловатая конструкция.
Пример напольной вешалки из торшера
Интересным решением будет вешалка-конструктор. Она может отличаться количеством деталей и дизайном. Такую конструкцию легко сложить и транспортировать. Независимо от материала, из которого выполнена вешалка, она будет выглядеть неординарно и стильно.
Пример собранной вешалки-конструктора
Ненужные строительные принадлежности могут стать идеальным вариантом для дизайнерской вешалки. Для этого можно воспользоваться деревянной:
- подставкой;
- лестницей;
- стремянкой.
Включив воображение, из такой, казалось бы, бесполезной вещи можно сделать стильный элемент интерьера, на котором удобно хранить одежду.
Даже старая лестница, которая уже давно валяется в гараже, может стать частью интерьера
Инструкция № 1 – напольная вешалка-дерево своими руками
Для создания стильного предмета интерьера и функциональной вешалки необходимо воспользоваться старым, засохшим деревом.
Пример готовой конструкции
Шаг № 1 – подготовка материала
Для получения красивой вешалки нужно обработать ствол дерева. Чтобы конструкция имела презентабельный вид, необходимо:
- убрать лишние ветки, сучья;
- снять с кору;
- обработать поверхность ствола наждачкой.
Все детали вешалки должны быть гладкими. Это необходимо для защиты одежды, покрытия пола от каких-либо повреждений.
Обработка ствола защитит одежду от повреждений
Шаг № 2 – устойчивость конструкции
Обеспечить хорошую устойчивость можно при помощи низкого центра тяжести. Для этого обработанный ствол необходимо прикрепить к деревянному или металлическому кругу или крестовине.
Прикрепить опору к стволу можно при помощи саморезов и шуруповерта
Цены на популярные модели шуруповертов
Шуруповерты
Основание важно обтянуть мягким материалом, который:
- будет защищать покрытие пола от повреждений;
- позволит свободно перемещать вешалку по квартире.
Шаг № 3 – обработка ствола
Для защиты вешалки от негативных внешних факторов и придания ей привлекательного вида, ствол необходимо обработать. Для этого нужно использовать лак или краску подходящего цвета. Такая конструкция может полностью преобразить интерьер комнаты.
Средство для обработки дерева нужно выбирать только качественное, дешевые варианты негативно скажутся на состоянии конструкции и сроках ее эксплуатации
Инструкция № 2 – простой способ создать напольную вешалку
Сделать такую вешалку может каждый, даже без каких-либо специфических знаний. Необходимо лишь подготовить следующие материалы.
- Четыре перекладины диаметром 2 сантиметра и длиной 180 сантиметров.
- Веревка для связывания палок. Ее можно заменить любой прочной декоративной нитью.
- Золотистая краска в виде аэрозоли для покраски ножек.
- Четыре вида краски для каждой ножки. Цвет можно выбирать любой.
- Малярный скотч.
Для создания оригинальной вешалки потребуется минимальный набор инструментов
Шаг № 1 – покраска ножек
Начинать необходимо с покраски ножек. Когда краска высохнет можно продолжать работу по следующему алгоритму.
- Наклеить малярный скотч на место, с которого будет начинаться покраска в золотистый цвет (примерно на высоте 30-40 сантиметров).
- Аккуратно распылить на этом участке краску из баллончика.
Малярный скотч можно удалять после того как высохнет краска
Шаг № 2 – формировка вешалки
Когда краска на досках высохнет, можно приступать к сборке конструкции. Для этого нужно:
- связать все опоры веревкой
- раздвинуть стойки в стороны, придавая форму им форму вигвама.
Ножки лучше расставлять шире, иначе конструкция будет:
- неудобной в применении;
- шаткой.
Затягивать веревку нужно туго, иначе вешалка просто развалится
Такая вешалка идеально подходит для размещения в углу комнаты
Пошаговая инструкция по сборке вешалки
Чтобы сконструировать вешалку, требуется подготовить такие материалы и инструменты:
- ПВХ трубы, переходники, уголки необходимого размера;
- краска для придания особой внешности;
- ножницы и паяльник для пластиковых труб;
- крепежные элементы;
- электродрель либо шуруповерт.
Как сделать простые по конструкции напольные вешалки для одежды своими руками из пластиковых труб с чертежами, фото и мастер-классами, рассмотрим далее.
Небольшая одежная стойка
Собрать вешалку несложно, поскольку элементы не требуется подгонять. Количество тех или иных деталей напрямую зависит от размеров вешалки.
Перед началом работы подготавливают чистое место для монтажа. На трубы наносят метки и нарезают в размер. Для рассматриваемого предмета нужны такие отрезки трубок: из 25 мм — 6 шт по 12 см, 1 шт – 80 см, 2 шт – 20 см, 1 шт – 10 см. Из трубки диаметром 20 мм подготавливают 3 отрезка по 15 см.
Пошаговый процесс сводится к следующим действиям:
- Все детали осматривают и если нужно шлифуют края наждачкой.
- Раскладывают элементы таким образом, чтобы в каждой группе были детали одной из частей вешалки.
- С помощью тройника собирают трубки парами так, чтобы они были расположены на одной линии. Аналогично делают еще два таких узла.
- Одну из собранных конструкций располагают перпендикулярно двум другим, после чего помещают свободные края в боковые отверстия.
- На образовавшиеся ножки надевают по уголку на 25 мм. Затем поворачивают края вниз – это будут ножки.
- Регулируют центральную Т-образную конструкцию, направляя свободное отверстие вверх.
- Для монтажа ответвления под одежду соединяют в одно целое крестовину, трубку, уголок либо колпачок. Таким же способом изготавливают еще 2 зла.
- В свободное отверстие тройника устанавливают трубку 80 см. На край монтируют одно из ответвлений изделия. Затем закрепляют один отрезок, после — другой. Смонтировав последнее ответвление, ставят трубку на 10 см. Завершают монтаж колпачком.
- Регулируют положение ответвлений, направляя их в разные стороны.
- На края ножек надевают заглушки.
- Вешалку красят на улице в желаемый цвет краской в аэрозоле, после чего оставляют для полного высыхания.
Для верхней одежды
Такой предмет будет отличным дополнением в любой прихожей, в особенности, если помещение имеет небольшие размеры. Для правильного расчета размеров вешалки, нужно выбрать место установки. Когда все моменты учтены и материал подготовлен, можно начинать сборку:
- Группируют все элементы для удобства монтажа.
- Чтобы собрать одно ответвление, потребуется отрезок трубки длиной 15 см, уголок, тройник. Таких частей необходимо 3. Для сборки стойки подготавливают трубки длиной 20, 30 и 80 см.
- На края ножек конструкции, а также на ее верхнюю часть и ответвления, насаживают заглушки.
Для понимания процесса монтажа вешалки из трубок можно обратиться к видео-примеру.
Для детской одежды
На детскую вешалку нужно затратить несколько больше времени и материалов, но она наверняка понравится вашему ребенку. Для изделия задействуют те же инструменты, что и в предыдущем варианте. Количество необходимых элементов необходимо рассчитать самостоятельно, исходя из места установки и габаритов изделия. Для удобства подсчета материала рекомендуется выполнить чертеж на бумаге.
Сборка проводится по аналогии с конструкцией выше. Чтобы вешалка была устойчивой, засыпать в трубки песок необязательно: она и так получается вполне стойкой. Малый вес изделия позволяет даже ребенку переставлять его в другое место. Если для соединения элементов используется клей, следует выждать после сборки сутки. Такую вешалку можно использовать не только для верхней одежды, но также для шапок, рюкзаков и зонтов.
Вешалка в несколько уровней
Помимо рассмотренных простых конструкций, есть варианты и с большими габаритами. Самостоятельно можно сделать вешалку, которая подойдет под целый гардероб одного человека. Для конструирования подготавливают такие элементы:
- ПВХ трубы сечением 25 мм;
- уголки;
- Т-образные элементы;
- панель для полки;
- краска в аэрозоле.
Монтаж вешалки выполняется следующим образом:
- Делают разметку труб, после чего их разрезают на заготовки, сортируют.
- Элементы начинают соединять снизу. Для этого фиксируют трубы в тройниках, после в поворотных углах.
- Устанавливают тройники на продольные трубы, фиксируют на них поперечный элемент, который будет представлять первый уровень изделия. После аналогичным образом монтируют продольную трубу и верхнюю поперечину.
- Ставят панель для полки, которая может служить для обуви либо аксессуаров.
- Готовую конструкцию по желанию красят.
Из вилок
Если вам хочется как-то украсить прихожую и сделать что-то креативное и необычное своими руками, смело воплощайте свои идеи. Задумка очень интересная, особенно если вы хотите сделать вешалку из вилок. На первый взгляд может показаться, что такое не совсем возможно, однако вы ошибаетесь.
Для создания необычной вешалки нам понадобятся:
- столовые вилки;
- доска;
- саморезы;
- шуруповерт;
- баллончик с краской;
- сверло;
- плоскогубцы;
- лак;
- кисть.

В первую очередь, нам необходимо будет согнуть вилки определенным образом. Два крайних зубца вилки мы не трогаем, только слегка отгибаем их для удобства дальнейшей работы. А два зубца в середине сгибаем при помощи плоскогубцев в две параллельные дуги. Если равной дуги не получится – ничего страшного, это только придаст вашей вешалке оригинальности. Также нужно будет слегка загнуть ручку вилки. Изгиб надо делать примерно на середине ручки. Это можно легко сделать руками.
Такие действия проводим над каждой из вилок. Кстати, количество вилок на вашей вешалке вы можете выбрать абсолютно любое. Только не забудьте подобрать подходящую по длине доску.

Чтобы закрепить вилки на доске, нужно просверлить в них небольшие отверстия для шурупов. Отверстие должно располагаться немного ниже нижнего края загнутых в кольцо зубцов вилки.

Далее готовим нашу доску. Если она немного неровная, нам придется обрезать некрасивые края и зачистить их шкуркой, чтобы немного выровнять поверхность. Чтобы придать доске какую-то форму, немного стачиваем углы. После этого покрываем доску лаком. Желательно это делать на балконе или на улице. Лак наносим кисточкой в одном направлении и оставляем до полного высыхания. При желании доску можно покрасить в цвет, который подходит к интерьеру вашей прихожей. После того, как лак на доске высох, мы можем прикрепить вилки. Вилки прикручиваются саморезами с помощью отвертки или шуруповерта. После закрепления ножки вилок слегка подогните вверх.

Наша вешалка из вилок готова. Остается только просверлить два отверстия, с помощью которых вешалка будет крепиться к стене.
О том, как своими руками сделать настенную деревянную вешалку в прихожую, смотрите в следующем видео.
Напольная вешалка из медных трубок
Итак, чтобы сделать напольную вешалку, понадобится зайти в сантехнический магазин и купить 2 трехметровые трубки.

Толщина – 2 сантиметра. Их необходимо нарезать на такие отрезки:
- 2 трубки по 1,5 метра;
- 2 по 1 метру;
- 4 по 25 сантиметров.

Если нет болгарки и ножовки, обрезку можно заказать прямо в магазине. Обычно это делают бесплатно.
Также понадобится:
- Медные колена аналогичного диаметра– 4 штуки.
- 2 Т-сгона.
- 2 колпака.
- Эпоксидный клей или холодная сварка для склейки. В принципе, можно их сварить и это будет правильнее, но тогда понадобится газовая горелка.
- Резиновые прокладки для ножек.

Когда все готово, можно приступать к сборке:
- Сначала измерьте место, где будет стоять вешалка для одежды.
- Затем соедините малые трубки (это будут ножки) и соедините со сгоном.
- На трубки необходимо поставить 2 колена и соединить между собой метровой трубкой.
- В Т-сгон вставляются полутораметровые трубы. Сверху их нужно соединить еще одной метровой трубкой через колено.
Вешалки для одежды на колесах — деревянные или металлические?
Металлические вешалки на колесах
За счет простоты конструкции металлических вешалок на колесах ее можно мобильно передвигать по дому. Вешалка может быть украшена различными декоративными элементами, что украсит домашний интерьер. Если помещение загромождается другими вещами или деталями, то можно просто передвинуть вешалку в другую комнату.
Конструкции металлических вешалок могут состоять не только из стойки для плечиков, но и быть дополнены ящичками и полочками для различных аксессуаров. Полочки могут быть при этом выполнены из металла, дерева или другого материала.
Фото различных моделей вешалок-стоек на колесиках:
Деревянные вешалки на колесах
Пик популярности деревянных вешалок пришелся на ХХ столетие, однако сейчас они заново набирают популярность, их нередко используют в прихожих и других комнатах. Преимуществом является их декоративные функции: они прекрасно вписываются в интерьер помещения, выполненного как в классическом, так и в модернистском стилях.
Современные вешалки на колесиках из дерева, выпускаемые промышленным способом, бывают нескольких видов. Они отличаются по предназначению, размерам, внешнему виду и разновидности дерева, из которого изготовлены:
Костюмная вешалка — обычно средней высоты, используются для индивидуального пользования. На ней можно развесить пиджака брюки и другие детали делового костюма. Она предназначена для одного человека, поэтому чаще всего эти вешалки ставят в спальной комнате, кабинете или гостиничном номере. Достоинством вешалки является несминаемость одежды при хранении.
Такая же вешалка может быть дополнена полочкой для обуви внизу:
- Вешалки-стойки на колесиках — могут использоваться в офисных помещениях или прихожих — они более вместительные, рассчитаны на одежду нескольких человек. Несмотря на существующее громадное количество новых и современных технологий и материалов, напольные вешалки, сделанные из натурального дерева, до сих пор остаются в моде. Их использование в интерьере дома будет подчеркивать классические традиции.
- Детские напольные вешалки. Независимо от возраста все дети очень активны и подвижны целый день, поэтому место для переодевания будет необходимо в детской комнате. А если при этом место является передвижным, как мобильная вешалка на колесиках, то переодевание становится веселым и быстрым занятием.
Размер такой вешалки и высота подбираются по возрасту и росту ребенка, например, для маленького ребенка подойдет невысокая вешалка «Малыш», с удобными ящичками внизу для книжек, сумочек и игрушек. Детские вешалки всегда красиво оформлены, отличаются яркими красками, а колесики позволяют легко передвигать такую вещь в нужное для малыша место в комнате.
Детская деревянная вешалка на колесах
Надежность и устойчивость детской вешалки обеспечивается ее корпусной конструкцией. Удобно будет то, что подойти к такой вешалке можно с любой стороны. Изготавливаются вешалки из дерева, покрываются полиуретановым лаком, чтобы избежать царапин при ее использовании.
Для детей постарше и в комнатах подростков используются модели-стойки, которые вмещают большее количество одежды, развешенной на плечиках.
Деревянная вешалка на колесах для девочек
Существуют также небольшие модели, предназначенные специально для развешивания школьной формы: платье или брюки на такой вешалке не помнутся, так как развешиваются на специальных перекладинах.
Деревянная вешалка на колесах для школьной формы
Советы при монтаже конструкций из ПВХ труб
Изготавливая вешалку или другие изделия из пластиковых труб, нелишним будет ознакомиться с рекомендациями специалистов:
- соединение пластиковых труб выполняется специальным клеем, но стоит он недешево и на большие изделия приходится немало тратиться. Однако такой клей можно заменить аналогичным веществом, которое предназначено для соединения деталей из пластика;
- большинство изделий не выделяется своей сложностью, но предварительно сделанный чертеж облегчит сборку;
- применяя для фиксации пластиковых элементов клей, следует использовать перчатки для защиты кожи рук, а также маску. Кроме этого, процесс сборки рекомендуется проводить на улице;
- выбор пластиковых труб сегодня довольно широкий и все они имеют разные характеристики, с которыми следует заранее ознакомиться. Для повышения прочности вешалки можно купить трубы с металлизированным слоем;
- чтобы придать трубам разные изгибы их нагревают в определенных местах, после чего добиваются нужной формы. Для этого подойдет, например, строительный фен либо горячая вода;
- для придания устойчивости, трубы заполняют песком. Если изделие имеет большие размеры, внутрь труб иногда вставляют арматуру.

Разобравшись в конструкции и ознакомившись с чертежами, фото-примерами и мастер-классом, становится понятно, что в создании напольной вешалки для одежды своими руками из пластиковых труб ничего сложного нет. Главное, задаться целью, выбрать из множества идей подходящий для вас вариант и воплотить его в реальность, что вполне по силам каждому.
https://youtube.com/watch?v=zOU-DDHDnOI
Шаблон
Сначала нужно воплотить задумку на бумаге, сделать точный чертеж с учетом размеров досок и специфики проекта. Затем получившийся шаблон следует аккуратно перенести на доски и обвести карандашом. Эскизы изделий в большом количестве представлены в виртуальных источниках, из которых можно взять только идею или распечатать готовый шаблон на плоттере, если таковой окажется в зоне досягаемости.

Самой доступной и простой является прямоугольная форма. Более замысловатое настенное основание из дерева под крючки придется вырезать. Не следует выбирать слишком сложные шаблоны, особенно начинающему мастеру.
Другие советы
Напольные и настенный варианты без труда можно сделать самому. Но, выбирая какую именно вещь мастерить, следует убедиться, что все необходимые инструменты подготовлены, а также есть чертеж. Передвижной или прикроватный тип вешалки не стоит делать слишком тяжелым, чтобы в будущем избежать травм. Если не хватает вдохновения, можно просмотреть фото готовых изделий.
В изготовлении нет сложных моментов, которые требовали бы специальной подготовки. Результат же избавит спинки стульев и кроватей от выполнения роли вешалок, а также будет дополнением к другой мебели. Здесь можно смело экспериментировать, чтобы потом заслуженно гордиться своей работой.
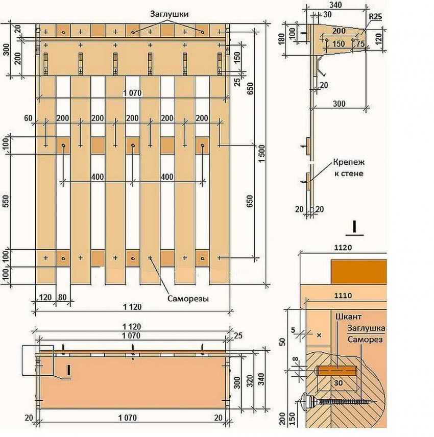
Вешалка с полочкой
Идею можно взять за основу, использовать любые другие «крючки» и упоры. Эта настенная вешалка своими руками сделана из двух струганных досок толщиной 25 мм, двух столярных угольников и пяти молотков.
Это то, что получилось
Древесина нужна сухая, иначе могут пойти трещины. Вместо угольников можно использовать даже треугольные куски аналогичной доски
Важное условие — наличие прямого угла. А вместо молотков можно закрепить даже сучки или, например, обрезанные деревянные вешалки, да любые крючки. Просто этот вариант — подарок
Просто этот вариант — подарок.
Две сухие строганные доски
Запчасти — молотки и угольники
Две доски должны иметь одинаковую длину
Важно точное совпадение. Подогнав длину, обрабатываем наждачной бумагой края. Есть дрель — берем насадку, крепим наждак и шлифуем сначала крупным зерном, потом средним
Затем приступаем к разметке. Сначала отмечаем, где будут крепится упоры. Оставшееся расстояние делим на шесть, ставим метки — их получается пять. Как раз по числу «крючков»
Есть дрель — берем насадку, крепим наждак и шлифуем сначала крупным зерном, потом средним. Затем приступаем к разметке. Сначала отмечаем, где будут крепится упоры. Оставшееся расстояние делим на шесть, ставим метки — их получается пять. Как раз по числу «крючков».
Разметка установки упоров и крючков
Безжалостно обрезаем ручки на молотках. Спиливаем слегка наискосок, чтобы получился небольшой наклон.
Отпиливаем ручки у молотков
При помощи дрели в центре делаем отверстия. Диаметр сверла — на 1-2 мм меньше, чем используемый крепеж, глубина отверстия — не меньше длины самореза.
Сверлим отверстия под саморезы
Две доски надо соединить под прямым углом. Шаг установки саморезов — 10-15 см. Размечаем места на боковине, переносим их на торец. Точность требуется высокая. Прикладываем одну к другой и тонко отточенным карандашом переносим отметки. По разметке делаем отверстия.
Сверлим отверстия
Складываем доски под углом 90°, соединяем саморезами. Сначала закручиваем два крайних, потом — один в середине, а после все остальные. Длина саморезов — не менее 75 мм (утроенная толщина доски).
Скрепленные доски
По разметке сверлим отверстия под крючки.
Сверлим отверстия под крючки
Устанавливаем упоры-угольники. Так как использованы угольники столярные, в них никаких отверстий не было. Их просверлили — по два сверху и снизу на каждой планке. На одном упоре получается 8 шурупов. Их берем мелкие — на более 20 мм, чтобы не прокололи древесину. Потому требуется их большое количество.
Устанавливаем упоры
Деревянная настенная вешалка готова. Осталось только покрасить и повесить на стену.
Готовый вариант
По мотивам этой самодельной вешалки были сделаны другие варианты.
Доски более узкие
С более объемными полочками
Разновидности
Простая, но функциональная конструкция
Комплект, состоящий из вешалки, банкетки и обувницы, сделают интерьер прихожей стильными и органичным.
Комплект для прихожей
Уникальности помещению придаст дизайнерское изделие, которое под силу изготовить самостоятельно буквально из подручных материалов.
Оригинальная модель для мелких вещей
В продаже можно встретить изделия на любой вкус и кошелек. Вешалки изготавливают из разных материалов: дерева, металла, пластика и их комбинаций. Они отличаются цветом, стилем, формой и размером, поэтому с выбором проблем не будет.
Классифицируются вешалки на несколько разновидностей.
Классическая напольная конструкция
Привычная и наиболее распространенная вертикально расположенная конструкция зрительно делает помещение выше. Крючки располагают в одну линию, по диагонали или в шахматном порядке.
На дизайн изделия влияет не только фурнитура, но и сама несущая планка.
Внешнее исполнение может сделать привычный предмет самостоятельным арт-объектом
Вешалка-забор представляет собой несколько узких планок из дерева – отсюда и название. При этом форма изделия можно быть не только прямоугольной, но и округлой или в виде волны. Древесная цветовая гамма разнообразна и состоит из обширного спектра оттенков в зависимости от породы дерева.
Оригинальная металлическая модель
В продаже встречаются полностью металлические изделия с возможностью регулировки высоты расположения крючков. Это бюджетные модели.
Более компактной является горизонтальная конструкция. Выглядит она как узкая панель с крючками, изготовленная из дерева, пластика или металла.
Новая жизнь старых вещей – креативный подход
Особое место занимают дизайнерские модели нестандартного исполнения. Помимо практической функции такая и вешалка играет роль выразительного акцента и украшает прихожую. Из этой серии можно подобрать модели, которые подчеркнут стиль помещения или детские оригинальные вешалки, которые будут уместны и в детской комнате.
Спрятать мелкие вещи можно в плетеные корзины и короба
Модель-трансформер состоит из планки и отгибающихся или выдвижных крючков, прижатых к корпусу. Это функциональная модель, позволяющая задействовать столько крючков, сколько надо в данный момент.
Яркий акцент в квартире-студии
Многофункциональные модели дополняются полкой для шапок, зеркалом. Более массивные изделия комбинируются с мягким пуфом и консольной полкой для мелочей.
Модель с несколькими функциями
Поворотная стойка с крючками с одной стороны и обученными полками с другой – еще одна разновидность напольной конструкции.
Оригинальные модели для скандинавского интерьера
Эти модели рекомендованы для прихожих квадратной формы, так как требуют больше пространства в объеме.
Навесная конструкция
Существуют два типа вешалок с дополнительными элементами. Первые состоят из нескольких, автономно расположенных, функциональных модулей. Вторые – это одна конструкция с несколькими функциями.
О раскрое фанеры
В любом случае перед родителями встают проблемы, до которых мелким пока дела нет: расход материала и трудоемкость. Нарисовать сложный контур по сетке на цельном листе фанеры уже нелегко, потом его нужно точно вырезать, что еще труднее. И в итоге оказывается, что 60% или 80% материала ушло в отход, более ни к чему не пригодный. Нужно, наоборот, сделать детскую вешалку-дерево из отходов. Или раскроить поплотнее цельный лист.

Сборка деталей вешалки-дерева из фанеры
Способ для этого давно известен: поэлементный раскрой и сборка. Если дерево фанерное, для полной прочности готового изделия каждую деталь набирают из 2-х слоев, оставляя соотв. фальцы и пазы, см. рис. Фрагменты заготовок собирают на клею ПВА, монтажном по дереву или «Экспресс» (жидкие гвозди). Если сборка на ПВА, фрагменты нужно дополнительно скрепить мелкими гвоздями змейкой с шагом 100-150 мм с отступом от краев 30-40 мм.
Собирают вешалку-дерево на тех же клеях, но теперь каждое соединение обязательно нужно скрепить саморезами по дереву конвертом. Затем зазоры и головки крепежа (их при сборке нужно утопить) затирают шпаклевкой из опилок той же фанеры на ПВА. Такое дерево и без покраски, только под лаком, будет выглядеть цельным.
Процесс изготовления вешалки
Из листа фанеры выпилить шаблон и перенести маркером на брус. Во внутренней части высверлить 2 отверстия, лобзиком выпилить обведенный шаблон. Обозначить отверстие для крюка, после чего просверлить (диаметр 5 мм). Выпилить во внутренней части высверленного отверстия выемку (используя напильник с крупной насечкой), поместить в нее гайку. Выемка нужна в дальнейшем для того, чтобы не образовывались зацепки при эксплуатации. Отпилить узкой ручной пилой 20 сантиметров проволоки, закруглить напильником один конец, со второго снять фаску и нарезать металлорежущей плашкой резьбу (длина около 5 мм.). Просверлить отверстие для крючка, который необходимо загнуть, после чего вставить и крепко зафиксировать гайкой.
Преимущества и недостатки

Вешалка – неотъемлемая часть любой прихожей и гардеробный комнаты. Габариты этих посещений далеко не всегда позволяют безболезненно разместить полноценный шкаф для одежды. Настенная или компактная напольная самодельная вешалка для прихожей станет отличным выходом в такой ситуации.
Изготовленная своими руками конструкция не потребует от создателя особых навыков столярного дела, специализированных инструментов и дорогостоящих материалов. Весьма привлекательную и функциональную вешалку можно сделать из того, что осталось после ремонта, инструментами, которые есть в арсенале любого домашнего мастера. Немаловажным достоинством самодельной вешалки является ее сравнительно низкая конечная стоимость, которая, даже при покупке материалов в ближайшем строительном супермаркете будет в разы ниже, чем в мебельных магазинах.
Что касается дизайна, то чертеж вешалки для одежды можно легко скачать из интернета, благо данная услуга доступна на специализированных ресурсах. Можно пойти и более простым путем: придумать дизайн и рассчитать размеры самостоятельно. Главное – это знать технологию, специфику используемых материалов и принципы проведения отделочных работ.





