Чертежи и необходимые размеры
Важнейшую роль при покупке стульчака играют габариты, которые стоит узнать заранее. Большая часть унитазов создается по определенным стандартам в плане форм и размерных характеристик, поэтому на них найти сидение несложно, а вот с необычными унитазами все иначе. Покупать крышку на такую модификацию нужно в фирменном магазине, чтобы не ошибиться.
Также выбирая туалетное сиденье по размерам, стоит учитывать то обстоятельство, что оно должно быть где-то на 10 мм шире ободка унитаза. Есть несколько видов сидений, которые отличаются своими габаритами:
- Классические — это типовые сиденья, которые ставятся в новостройках с отделкой «под ключ». Созданы они для взрослых, но ими пользуются и дети.
- Детские — их можно ставить на простые сиденья в момент, когда ребенку захочется в туалет, а потом они убираются. Имеются и иные варианты, в том числе складные, которые нужны для путешествий.
- Специальные — делаются для клиентов с ограниченными возможностями. Как и в случае с детскими моделями, бывают разными — складывающимися, с ручками и т.д. Создаются такие модификации для разных людей.
Здесь стоит ещё сказать об универсальных моделях, особенно о семейных вариантах. Они по размерам также отличаются, главное, чтобы выбрать самый лучший вариант, удобный для всех членов семейства
Если вы хотите сделать стульчак самостоятельно, обратите внимание на чертеж
Строим деревенский туалет во дворе, делаем фундамент под туалет на участке
Первое, о чем нужно подумать перед тем, как сделать сельский туалет, — это его основание. Домик можно поставить на блоки либо на самодельные сваи, перерастающие в опоры для деревянных стен. Вот как это сделать. Чтобы установить блоки, сначала осуществите разметку участка, после чего выройте по углам ямки. В них засыпьте песок и залейте бетонный раствор. Сверху на еще жидкую смесь положите арматурную сетку и бетонный блок. После этого можно приступать к рытью выгреба и формированию нижней обвязки деревенского туалета на дачном участке.
Второй вариант основания включает в себя фундамент под туалет, совмещенный с каркасом. Для создания подобной конструкции необходимо взять четыре бруса длиной порядка 3000-3300 мм и вкопать их в землю на глубину 1000 мм. Для прочности их можно залить бетонным раствором. А чтобы они во время высыхания цемента стояли ровно, на время схватывания смеси надо подпереть стойки с двух сторон. Как только цемент возьмется, основу можно дополнить нижней и верхней обвязками, а затем обшить досками либо фанерой. Как видите, теория о том, как построить туалет, совсем несложная. Начините, и у вас все получится.
Сборка своими руками
Можно существенно сэкономить на покупке уличного туалета и сделать его самому, если часто пользоваться им не будет необходимости.
Чтобы сделать деревянную конструкцию с пластиковым сидением, нужно взять обычный стульчак от унитаза и деревянные доски. Если нет специального покрытия под санузел, половину застелить досками, а в 40 см от уровня пола установить горизонтальную балку и прибить от нее до пола доски- в горизонтальном направлении. В получившемся «прилавке» остается сделать отверстие под стульчак и прикрепить к нему сидение.
Такой вариант — модифицированная версия традиционного деревенского туалета с дыркой в полу. Сидение из пластмассы можно легко вымыть и продезинфицировать.
В качестве унитаза можно использовать прочный старый стул. Его сидение убирается, а вместо него кладется толстая фанера и проделывается отверстие. Сверху прикручивается пластиковое сидение для унитаза. Стул вокруг ножек можно обшить той же фанерой или пластиком, а сами ножки к полу крепятся металлическими уголками.
https://youtube.com/watch?v=h4bNvoPbT4Y
Еще один самодельный вариант — это оцинкованная металлическая труба с диаметром порядка 35 см и высотой до 40 см. Верхняя часть трубы разрезается в виде лепестков с помощью ножниц по металлу. Сидение вырезается такими же ножницами из толстой фанеры (толщиной от 8 мм) и прикрепляется на трубе. Полученная конструкция устанавливается над сливной ямой.
https://youtube.com/watch?v=K13ZgnfwYuU
Подготовка
- Сколотить площадку-пол и зашить досками, оставив отверстие. Доски покрыть антигрибковым составом в два слоя
- Установить готовую площадку на основание
- Сколотить переднюю и заднюю стенки, обшить их вагонкой.
Сборка конструкции
-
Согласно чертежу установить обе стенки
- Стенки крепятся к площадке-полу с помощью технологичных досок (потом их убрать)
- Выполнить обрешетку и покрыть гидроизоляционным составом
- Крыша сооружается из досок внахлест, фиксируется кровельными саморезами и покрывается коньком
- Установить дверной блок и обрамить проем наличником
Размеры дачного туалета типа шалаш не велики. Не забудьте установить под крышей фрамугу для проветривания, которая тоже будет треугольной формы.
Смотрим видео, сборка клозета для дачного участка:
https://youtube.com/watch?v=p9uReJqLlCc
Кровельным материалом для Шалаша может служить:
- Профнастил
- Шифер
- Оцинкованные гофролисты
- Иные материалы
Строить или покупать
Что выгоднее — купить готовую модель домика или построить по чертежу дачный туалет типа шалаш самостоятельно? Если вы сомневаетесь, что справитесь с монтажом септика самостоятельно — купите готовые изделия. Но смастерить домик из деревянной основы и обшить вагонкой может любой хозяин дачи.
Для работы будут нужны:
- Ножовка
- Рубанок
- Молоток
- Отвертка
- Саморезы
- Гвозди.
Имея элементарные умения в использовании данного инструментария, вы сможете возвести собственноручно домик для дачного туалета.
Примерный расход
- Две доски обрезных (6 и 4 метров)
- Доска половая — 4 штуки по 6 метров
- Вагонка длиной 3 метра — от двух до четырех пачек (в зависимости от внутренней обшивки)
- Пергамин — минимум 4 м
- Рубероид — 1,5 метра
- Песок — 2 ведра
- Гвозди оцинкованные — 2 кг
- Гвозди для вагонки (без шляпок) — 2 кг
- Гвозди для шифера — 20 шт
- Саморезы — пригоршня
- Шифер — 2 листа (8-волновой)
- Лист оцинкованного железа для конька — 1 шт
- Дверь с фурнитурой — 1 шт
- Антигрибковая жидкость
Советы мастеров
- Как сделать туалет на дачном участке? Чтобы ваш дачный туалет был устойчивым, и его не сдуло порывами ветра, надежно зафиксируйте низ строения.
- Устанавливайте конструкцию примерно на 20 сантиметров выше уровня грунта.
- Не проводите обшивку строения над ямой: сначала установите пол и сидение для туалета. После в стороне соорудите каркас, и перенесите его на готовое основание. В одиночку с этим не справиться — необходима помощь еще двоих человек.
- Контролируйте вертикаль и горизонталь уровнем на всех этапах монтажа.
- Дверной блок должен открываться наружу, иначе вход в строение будет затруднительным.
- Позаботьтесь о световом окне, чтобы днем не включать свет.
- Между деревянным каркасом и каменным основанием должен быть гидроизоляционный слой (рубероид).
- Если стены не обшиты виниловой вагонкой, их окрашивают краской.
- Не забывайте обрабатывать деревянное полотно антисептиком.
Как видите, построить самостоятельно хороший септик во дворе несложно. Вам необходимо лишь обладать навыками владения рабочими инструментами и составить подробный чертеж.
Делаем все весело и под музыку, так работают профессионалы:
https://youtube.com/watch?v=WPAz_o98i3E
Также следует рассчитать количество строительного материала, чтобы не ездить лишний раз в строймаркет. Самым оптимальным дизайном для дачной уборной будет домик в стиле шалаша. А выгребной сток лучше сделать из бетонных колец. Насчет дренажной системы вы решите сами. Но для чистого воздуха лучше подойдет абсолютная гидроизоляция, чем дренаж.
Прямоугольный вариант
В первую очередь рассмотрим самый распространенный прямоугольный деревянный вариант. Сооружается он в следующей последовательности:
1. Из брусков сооружается прямоугольная конструкция. Монтаж происходит с привязкой к основанию и задней стенке туалета. Размер вы выбираете произвольный, учитывая удобство использования.
2. Сверху и сбоку каркас обшивается доской или фанерой. Посередине отмечается овал или круг. Выпиливается электролобзиком отверстие по шаблону.
3. Далее желательно позаботиться о внешней обработке. Необходимо для придания водоотталкивающих свойств. Подойдет лак или пропитка для дерева. Обрабатывать следует внутреннюю и наружную часть.
4. Сверху можно положить стульчак из пенопласта или же пластиковый от обыкновенного фарфорового унитаза. Второй желательно зафиксировать саморезами, чтобы не смещался во время использования.

При конструкции по типу пудр-клозет верхняя часть должна быть выполнена открывающейся. Это необходимо для изъятия наполнившейся емкости. Про обустройство пудр-клозета сможете узнать в статье про обустройство дачного деревянного туалета. Ссылка после статьи.
Во избежание загрязнения стенок короба возможен следующий вариант. Берете старое ведро. Срезаете дно. Фиксируете под отверстием стульчака саморезами. Сверху устанавливаете пластиковое сидение с крышкой.
https://youtube.com/watch?v=iWMcoCeSLWA
https://youtube.com/watch?v=jml5is—wus
https://youtube.com/watch?v=szFd6wi3bkI
Материалы изготовления стульчака
Материал, используемый для изготовления стульчака, по большей части оказывает свое влияние на качество и функциональность. Есть некоторые разновидности материалов, из которых делают сидения для унитаза:
- Дюропласт. Изделия из этого материала отличаются высоким уровнем механической прочности. Крышку из этого материала гораздо легче мыть, а в состав данного материала уже включены антибактериальные вещества. Устойчивость к воздействиям ультрафиолета и кислот также является одним из преимуществ данного материала. Стоимость изделий из данного материала, гораздо выше по сравнению с пластиковыми аналогами.
- Пластик. Наиболее популярный материал для изготовления унитазных крышек. Это благодаря соотношению цены и качества. Сиденье из пластика легкое и съемное. Но оно весьма недолговечно, а также подвержено трещинам и сколам.
- Дерево из МДФ и дерева отличаются богатым внешним видом и привлекают своей натуральностью. Они обладают одним серьезным недостатком – довольно большим весом. По этой причине велика вероятность того что сама крышка может повредить поверхность самого унитаза.
- Фанера. Подобные изделия в наше время встречаются крайне редко. Как правило, их делают самостоятельно. Крышка у таких изделий отсутствует.
- Пенопласт. В магазинах садовых принадлежностей можно довольно часто увидеть подобные изделия для дачных унитазов. Они предназначаются для уличных туалетов. Крышки для унитаза из пенопласта являются дешевым вариантом с приятной фактурой.
- Ткань. Подобную фактуру применяют обычно в декоративных целях и для придания дополнительного комфорта. Таким образом создается эффект теплого сиденья для унитаза.
- Бумага или полиэтиленовая пленка. Данный материал предназначен для изготовления одноразовых сидений на унитаз предназначаемых для посещения общественных туалетов. Есть также специальные гигиенические сиденья, представляющие собой накладки. Такие можно встретить в бизнес-центрах или гостиницах.
При выборе стульчака по материалу, из которого он изготовлен, нужно помнить о его целях применения и дальнейшей эксплуатации.

Критерии выбора стульчака

Подбирая стульчак для дачного туалета, стоит обратить внимание на три главных фактора. Первый – форма и габариты
Края сидений не должны выходить за пределы ободка унитаза или каркасной части постамента/подиума больше, чем на 1-2 см. Иначе стульчак будет не только неудобным, но и быстро выйдет из строя
Первый – форма и габариты. Края сидений не должны выходить за пределы ободка унитаза или каркасной части постамента/подиума больше, чем на 1-2 см. Иначе стульчак будет не только неудобным, но и быстро выйдет из строя.
Второй – вариант крышки. Она может быть как простой откидной, так и с микролифтом – специальным механизмом, который управляет опусканием крышки.И, наконец, третий важнейший критерий выбора – материал, из которого сделано изделие. Учитывайте не только материал основания стульчака, но и обивки, если она есть.

Уход за унитазом в уличном туалете
Чтобы обеспечить долговечность конструкции и комфортность её использования, важно придерживаться определенных правил ухода. Советы специалистов:
Советы специалистов:
Чаша должна регулярно очищаться при помощи специальных средств
Это важно для устранения неприятных запахов и микробов. Керамика и фарфор чистятся с использованием абразивных средств, муравьиной кислоты и прочих жестких препаратов
Пластик можно мыть исключительно специализированными продуктами;
Для устранения неприятного запаха из выгребной ямы нужно использовать биологические или химические активаторы. Они засыпаются в емкость и ускоряют процесс переработки фекалий. Это помогает решить проблему очистки стока, а также в случае использования биоактиваторов, улучшить качество компоста;
В унитазах, соединенных с канализацией, часто встречается проблема заиливания труб. Тогда отходы оседают на стенках и уменьшают их полезный диаметр. Чтобы этого избежать, несколько раз в сезон нужно проливать трубы горячей водой с уксусом и содой. Или заливать патрубки профессиональными очистителями («Ерш», «Крот» и другие);
Дважды в сезон требуется осматривать туалет на предмет гнили, трещин и других поломок. Раз в несколько лет (по необходимости) важно проводить косметический ремонт.
Как построить дачный туалет из разного вида стройматериалов общие рекомендации
В строительстве дачных туалетов можно использовать различное сырьё, начиная от дерева, заканчивая бетонными блоками. Предлагаем вашему вниманию несколько разновидностей построек.
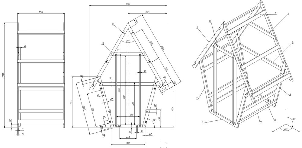
Деревянный туалет для дачи своими руками с чертежами
Многие не представляют, насколько интересными могут быть конструкции деревянных уличных сортиров. С помощью чертежей туалетов и прописанных на них размеров, на даче легко своими руками реализовать любую из моделей.

Кабинка в виде туалета-домика для дачи подойдёт для небольших участковФОТО: rmnt-aqua.ru

На крышу можно выкладывать любой вариант черепицыФОТО: legkovmeste.ru

Вариант классической будки-скворечникаФОТО: mastervdome.com
Для каждого варианта дачного туалета чертежи и размеры будут отличаться.
Как сделать туалет на даче своими руками из кирпича: интересные варианты
Этапы строительства при возведении кирпичного сортира совершенно не отличаются друг от друга. Данный вариант смотрится богато и реализуется просто. В итоге, стены не требуют дополнительной отделки. Рассмотрим несколько типов дачных туалетов, сделанных своими руками, на фото, которые могут пригодиться для обустройства.

Очень необычный вариантФОТО: domateplee.ru

Современный туалет и душ «два в одном» с освещениемФОТО: roomester.ru

Вариант с интересной задумкой внешнего видаФОТО: 1000dosok.ru
Уличный туалет своими руками из бетонных блоков: видео
Отхожее место на дачном участке также можно легко построить из бетонных или газобетонных блоков. Наиболее оптимально из такого материала изготавливать совмещённые конструкции: дачный туалет с душем. На видео можно рассмотреть, каким образом должны быть устроены перегородки для предложенного варианта.
https://youtube.com/watch?v=k84npuDycOk
Уважаемые читатели, если у вас возникли вопросы по теме или что-то не получается в ходе строительства, обязательно спрашивайте. Не забывайте оценивать публикацию и делиться личным мнением.
Экономьте время: отборные статьи каждую неделю по почте
Виды унитазов для дачного туалета
Прежде чем выбрать дачный сантехнический прибор для уличного туалета, рекомендуется тщательно изучить все разновидности моделей
Каждая из них имеет определенные особенности, о которых важно знать перед началом монтажа
Наиболее распространенные материалы изготовления:
- керамика;
- фарфор;
- дерево;
- пластик.

Фарфоровые
Дачные модели, выполненные из фарфора, имеют меньший размер по сравнению с квартирными аналогами. Днище также отсутствуют, подобные конструкции устанавливаются над отверстием сливной ямы.
Главное требование к туалетам на даче с фарфоровым унитазом – необходимость установки его на основание (чаще всего, из бетона), т.к. материал изготовления обуславливает большую массу. Дачные модели отличаются крупным нижним отверстием, которое способствует беспрепятственному попаданию отходов в яму.
Преимущества уличных изделий из фарфора:
за ним просто ухаживать, не требуется применять специализированные чистящие средства, как, например, для пластиковых аналогов; материал является непористым, поэтому не впитывает грязь, влагу и различные запахи, что особенно важно в дачном туалете; повышенная прочность и надежность материала, вследствие чего – длительный срок эксплуатации. К недостаткам можно отнести большой вес изделия, в результате чего появляется необходимость установки на дополнительное основание, а также достаточно высокая стоимость
К недостаткам можно отнести большой вес изделия, в результате чего появляется необходимость установки на дополнительное основание, а также достаточно высокая стоимость.
Процедура установки схожа с монтажом унитаза в квартире. Рассмотрим процедуру монтажа фарфоровых моделей на примере унитаза Leroy Merlin:
- Конструкция устанавливается на отверстие для слива. Для предотвращения падения внутрь предметов следует закрыть отверстие фанерным полотном, на котором мелом отмечен периметр слива.
- Сверлятся отверстия для болтов.
- Изделие монтируется на помост, в необходимых местах конструкция закрепляется при помощи болтов и гаек.
- Производится установка стульчака.
Если на участке построен септик, то к унитазному отверстию потребуется подсоединить трубу крупного диаметра, по которой все стоки будут поступать в канализацию.
Керамические
Керамические унитазы являются наиболее распространенными как среди дачников, так и среди жителей квартир. Подобное изделие для дачного уличного туалета не имеет сливного бачка. Важным отличием от квартирных моделей является отсутствие чаши в конструкции. Т.к. слив с бачка не осуществляется, все отходы попадают непосредственно в выгребную яму.
Однако иногда владельцы участка для повышения удобства подсоединяют шланг с водой, который позволяет смывать отходы.
Основные преимущества керамических моделей:
- способность выдерживать нагрузку до 180-200 кг;
- устойчивость и надежность конструкции;
- возможность эксплуатации в течение продолжительного периода;
- при аккуратном использовании неподверженность загрязнению;
- простота ухода, достаточно использовать обычные химические чистящие средства;
- благодаря широкому отверстию для очистки сливной ямы можно использовать шланг ассенизаторской спецтехники.
Варианты уличных сантехнических приборов для дачи, как правило, представлены в различных цветах, поэтому можно подобрать подходящий к дизайну уборной. Рекомендуется на подобные модели приобретать крышку с откидным верхом, однако в некоторых случаях унитазы имеют широкий ободок, поэтому их можно эксплуатировать и без крышки. Для крепления сиденья выделены специальные отверстия.
Установка производится достаточно просто, помимо стандартных строительных инструментов, дополнительное оборудование не требуется. Монтаж состоит из таких этапов:
- В полу кабинки создается отверстие, диаметр которого равен сечению выходного унитазного отверстия.
- Конструкция фиксируется при помощи 4 крепежных элементов. В качестве деталей для крепления используются болты со шляпками. В большинстве случаев они не идут в комплекте с сантехникой, а приобретаются отдельно.
- Над отверстием устанавливается конструкция, которая крепится к днищу при помощи болтов, затем изнутри обрабатывается силиконовым герметикам в тех местах, где соединяются пол и унитазные стенки.
- Для обеспечения гидроизоляции непременно следует обработать внешние места соединения силикатным средством или другим герметикам.
Как сделать самостоятельно
Самостоятельное возведение дачного уличного туалета состоит из нескольких этапов. Рассмотрим их более внимательно.
Выгребная яма

Вначале выбранный участок очищается от растений и мусора. Затем можно перейти к созданию выгребной ямы. Она должна быть квадратной. Минимальная глубина – 2 м.
Дно ямы можно забетонировать. Стенки шпаклюются, а швы замазываются битумом. Если нужна поглощающая конструкция, тогда яма копается до песка. Через него жидкие нечистоты будут быстрее проникать в грунт. На дно здесь кладется галька или гравий. Стены укрепляются бетонной конструкцией, кирпичами, железобетонными кольцами. Также в яму можно поставить большой бак из пластика.
Сверху котлован накрывается брусьями, а потом шифером. Его можно забетонировать, оставив только место под стульчак.
Туалетный домик

Сам домик строится после завершения работ по созданию выгребной ямы. Он на 2/3 должен выдвигается по отношению к нижней части постройки.
При необходимости организуется неглубокое основание. На него укладывается гидроизоляция и пара слоев рубероида.
Вместо основы можно применять строительные блоки или вкопать по углам 4 столба. В последнем случае столбы помещаются в ямы глубиной 60–100 см. Фиксируются они с помощью цемента.
Оптимальная высота сооружения составляет 2,2–2,5 м, а размеры – 1×1,5 м. Каркас возводится из брусьев с сечением 8×8 или 5х5 см. Вначале выводится прямоугольная опора. В ней делается перемычка. Для лучшей прочности по ее диагоналям монтируются укосины. На одной стенке зачастую оставляют место для окна. По углам каркаса устанавливаются прочные уголки. Далее он обшивается досками.
После этого выводится каркас стульчака. Затем к нему прибиваются доски. При использовании напольного унитаза этот пункт не выполняется.
В конце из досок сооружается крыша. Сверху на них кладется гидроизоляция и рубероид.
Вентиляция и освещение

В роли вытяжки выступает пластиковая труба диаметром около 10 см. Ее роль заключается в отведении из ямы неприятного запаха. Труба нижним краем вводится в яму. Ее верхний край выводят над крышей на 20 см.
Труба фиксируется специальными железными хомутами. Для тяги на ее головку устанавливают особую насадку-дефлектор.
Для использования санузла ночью проводится освещение. Если возможно, в сооружение проводится электропроводка и устанавливается небольшой светильник. Также источником света может служить фонарик на батарейках или аккумуляторе.
Днем свет внутрь будет проникать из небольшого окошка или отверстие в дверке.
Установка двери и внутреннее обустройство
В уличный туалет обычно ставят дверь из пластика или дерева. Ее можно вполне сделать самостоятельно, используя остатки обшивочного материала. Навешивается дверь на 2 петли. Для фиксации ее в закрытом положении снаружи и внутри крепится крючок или обычный шпингалет.
Следуя приведенным выше рекомендациям, можно легко и по всем правилам построить своими руками удобный санузел на улице. При правильном возведении такой конструкцией можно будет без проблем пользоваться десятилетиями.
Теплые сидушки собственного изготовления
Дачники обычно являются людьми мастеровитыми. Они любят создавать разные хозяйственные предметы собственными руками. Почему же не изготовить и теплое сидение для дачного уличного туалета? Одним из самых распространенных вариантов здесь являются сидушки, обшитые мехом животных. В деревнях для этого чаще всего используются шкурки кроликов. Для изготовления теплого сидения нужно взять обычную пластмассовую сидушку, которой неприятно пользоваться зимой, и плотно обшить ее кроличьей шкуркой. В последние годы у отечественных дачников большой популярностью пользуются торфяные уличные туалеты. Они позволяют не только удобно справлять малую и большую нужду, но и производить компост, который успешно используется для повышения плодовитости огородных растений. Для некоторых моделей таких туалетов созданы специальные сидения, позволяющие раздельно собирать жидкие и твердые отходы жизнедеятельности человеческого организма.
Как устроены такие приспособления? В нижней части сидения к нему прикреплена специальная воронка. От нее к емкости для сбора урины ведет специальная гофрированная трубка. Твердые же отходы собираются в другую емкость. Такие сидения рассчитаны на использование в уличных туалетных постройках. Поэтому сами сидушки изготавливаются из полипропилена, благодаря чему ими достаточно комфортно пользоваться и в холодное время года.
Таким образом, сегодня существует значительный выбор средств и приспособлений для комфортного пользования дачным туалетом в любой сезон. Если при этом тщательно следить за чистотой туалетного сидения, а также других интерьерных элементов, то можно достичь высокого уровня комфорта пользования туалета, расположенного на улице. К тому же теперь есть огромное количество бытовой химии, позволяющей избавиться в таких постройках от неприятного запаха, а также содержать их в приемлемом санитарно-гигиеническом состоянии.
Сиденье для унитаза является важным элементом сантехнического аппарата, обеспечивающим комфорт и эстетическое восприятие всей конструкции. Исторически эта деталь прошла путь от простой деревянной подставки до многофункционального электронного устройства, что связано с разными возможностями и потребностями людей.
В наше время сиденье для унитаза имеет разные конструкции, формы и дизайн. Выбор его стал большой проблемой из-за огромного ассортимента. В связи с этим к выбору этого элемента следует подойти серьезно и обстоятельно.





