Деревянные бани с бассейном
Бани с бассейнами на загородном участке уже давно перестали быть роскошью. Это обусловлено тем, что строительные материалы стали более доступными, а также и работы по организации такого банного комплекса можно будет осуществить собственными руками.
Баня из бруса пользуется большой популярностью по той причине, что древесина считается экологически чистым материалом. Также не стоит забывать и про другие свойства этого материала. Дерево отлично поддерживает температурный режим. Предварительно древесину для этих целей заготавливают и обрабатывают специальными антисептическими средствами от насекомых.
Проект и чертежи деревянной бани с бассейном
Проекты деревянных бань с бассейном довольно разнообразны. Они могут быть любого размера. Очень популярной стала финская сауна на загородном участке. Эта такая же баня, только с сухим паром. Технология её возведения довольно сложная, справиться с ней может только специалист в этой области.
Совет. Чтобы выстроить баню из дерева с бассейном, нужен участок большого размера.
Под деревянные бани также, как и под кирпичные, нужно будет сделать прочный фундамент. Он может быть:
- монолитным,
- свайным,
- столбчатым.
Для небольших бань можно применить свайный или столбчатый фундамент, который располагают по всему периметру будущего строения. Для большой бани с бассейном будет лучше использовать монолитный фундамент для более прочной конструкции.
Проект бани с большим бассейном
Бани с бассейном
Небольшой бассейн из бетона
Вышеперечисленные примеры – это классические варианты. Но их можно дополнить еще одним элементом
После парной очень важно омываться водой. И для этого можно использовать не только тазы, ванные и душ
По возможности одну из комнат можно оборудовать под бассейн. Конечно же, для этого необходима значительная территория. Бассейн может быть бетонным, резиновым, полипропиленовым или пластиковым и иметь разборную, переносную или стационарную конструкцию. Может размещаться над поверхностью пола или быть встроенным в него.
Финская сауна с бассейном и зоной отдыха
Бассейном можно оборудовать комнату для отдыха. Там можно разместить столы, посуду и места для ее хранения, телевизор, холодильник и многое другое. Это дает возможность уменьшить размер предбанника.
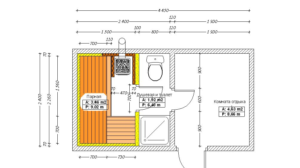
Как правильно рассчитать размер парилки в бане
Чтобы правильно рассчитать размеры парилки, нужно знать примерно какое количество людей будет посещать парилку. В таком случае если вы определились с количеством вам не составит труда посчитать размер парилки. На 1 посетителя примерно 1 – 1,5 кв.м, на 2 посетителей — 3 кв.м и для 3 посетителей соответственно – 5кв.м.

Надо обязательно учитывать еше и удобство использования. Парится надо, сидя, лежа, полулежа. Площадь и высота потолков понадобится разная:
- Сидеть с согнутыми ногами можно парится и с площадью в 1- 1,5 кв.м, при высоте парилки в 1,5 м.
- Самая удобная поза в парной это лежа, но в тогда надо учитывать, что помещение вам понадобится побольше. Если на полоке лежать с согнутыми ногами, длинна полока минимум нужна 1,5 м и габариты парной примерно будут-таки: 1,6х1,5 м.
- Если планируете обустроить шезлонг, длина вырастит до 1,7 – 1,8 м.
- Планируете в полный рост лежак на полоке с длинной примерно в 1,9 м и шириной 0,6 м. Для 1 посетителя парной площадь вырастит до 2 кв.м.
- Оптимально определить высоту потолков в парилке, возьмите рост самого высокого человека, который будет посещать баню.
Чтобы рассчитать оптимальные размеры парилки, учитывайте, что полки могут быть двухярусные, а люди будут парится в разных положениях кому как удобно будет. Поэтому считайте, что габариты парилки примерно 5 – 8 кв.м., на 2 – 4 человека.
Типовые проекты бани с бассейном
Несмотря на кажущееся разнообразие, вариантов постройки банного комплекса в частном доме существует не так уж и много. Чтобы не придумывать велосипед заново, архитекторы и дизайнеры предлагают несколько типовых проектов с различным расположением бассейна внутри здания:
- С выносом бассейновой чаши в отдельное крыло;
- Центральное расположение бассейна внутри банного помещения;
- Перенос искусственного водоема под застекленный или крытый навес.
Иногда архитекторы, стремясь сэкономить драгоценные метры площади, используют двухэтажную компоновку банного комплекса. На цокольном или первом этаже располагаются хозяйственные постройки, бассейн и площадка для отдыха. На втором уровне выносят парилку, душевые кабины и тренажеры.
Подобные комплексы сложно назвать дополнением к загородному коттеджу, как правило, банная постройка с бассейном оборудована жилыми помещениями и всем необходимым для того, чтобы удачно отдохнуть в течение выходных.

Простейший вариант банного комплекса
Для полноценного загородного отдыха на природе не обязательно выбирать проекты монументальных зданий с огромными бассейнами, занимающими половину участка. Можно оформить комплекс в виде небольшого одноэтажного дома с деревянными стенами. Построить такой домик вполне доступно большинству любителей легкого пара со средним достатком.

Если баньку с бассейном планируется строить на окраине деревеньки, то можно вообще отказаться от идеи построить банный комплекс с «нуля». Вполне возможно выкупить старый, еще прочный деревянный дом с капитальным фундаментом и переоборудовать его под баню.

К сведению! Для подобных проектов обычно используют готовые пластиковые бассейны из термопластов. Стоит такая чаша на порядок дешевле, а установить емкость для купания можно хоть в подвале банного комплекса.
Небольшие габариты постройки и деревянные стены сделают нагрев воды в бассейне и банные процедуры не такими затратными. Найти проект помещения, более теплого и удобного, чем деревянный деревенский дом, очень непросто. При желании банный комплекс с бассейном можно использовать в качестве гостевой постройки или мини-гостиницы.
Классический вариант банного дома с бассейном
Разумеется, если позволяют средства, возможности и время, то лучше всего не перестраивать старый дом, а планировать полноценный двухэтажный комплекс с бассейновым отделением и зоной отдыха, как на схеме.

Первый этаж банной постройки 11х12 м полностью отдан под парилку, комнату отдыха и кухню. Четверть площади отведено под бассейн 5х3 м. Понятно, выполнять полноценные заплывы в такой чаше не получится, но для банных процедур вполне достаточно.
В комнате, отведенной для оборудования бассейна, оконные проемы лучше всего сделать низкими, но широкими. Обычно бревенчатые стены не сильно располагают для обустройства окон на все помещение, но для бани и парилки подобные решения не очень удобны.

Если по условиям заказчика для бассейна банного комплекса требуется панорамное освещение, обеспечивающее максимальный уровень света, окна на всю стену, то чашу выносят в отдельное крыло с круговым остеклением.

Городской вариант банного комплекса с бассейном
В условиях, когда рельеф участка настолько сложен, что о строительстве полноценного здания не может быть и речи, возможно, решить проблему можно постройкой банного комплекса на сваях.

Основу банного домика составляет бетонная плита, одним краем опирающаяся на фундаментную ленту в грунте, противоположной стороной на поле из стальных свай. Благодаря нестандартному устройству фундаментной системы удается отлить на склоне и зафиксировать на грунте бетонную чашу бассейна. Легкий банный домик каркасного типа с парилкой и открытой террасой пристраивается к массивному корпусу водоема. Весь комплекс умещается на площади в 60 м2.
Найм персонала
Если вы решили построить сауну на своем участке, достаточно будет нанять двух банщиков, которые будут работать посменно, взаимодействовать с клиентами и, конечно же, осуществлять обслуживание.
Многие предприниматели, которые открыли банный бизнес на своем участке, предпочитают работать самостоятельно, таким образом существенно сокращают расходы.
В случае открытия банного комплекса, вам потребуется нанять таких сотрудников, как: администратор, банщик, истопник, повар, помощники на кухню, охранник, электрик, уборщица.
Когда бизнес начнет расти, придется увеличить штат сотрудников и нанять: бармена, массажиста, косметолога (спа-процедуры принесут неплохой дополнительный доход).
Чистовые и отделочные работы
После того как бетон будет залит в опалубку, необходимо выждать 30 дней до его окончательного схватывания. После этого можно будет приступать к отделочным работам, которые заключаются в выравнивании и оштукатуривании стен. Кроме того, стенки бассейна покрываются гидроизоляцией.
Виды фарфоровой плитки для отделки бассейна
Опытные строители, знающие, как сделать бассейн своими руками для бани, советуют выбирать гидроизоляцию в зависимости от того, какой внешний вид для бассейна вы предполагаете выбрать. Например, если вам нравится отделка стенок бассейна керамической плиткой, до декорирования стен нужно будет защитить их 2 слоями жидкой гидроизоляции, имеющей проникающие свойства. После этого плитка укладывается на особый гидрофобный состав, чтобы она не откололась под воздействием воды.
https://youtube.com/watch?v=D2Qubk_zDM8
Помните и о том, что обычная керамическая плитка не может быть использована для отделки бассейна, так как она имеет пористую структуру, отлично впитывает воду и является прекрасной средой для размножения грибков и плесени. Бассейны лучше всего отделывать стеклянной мозаикой или фарфоровой плиткой. Но мозаика стоит значительно дороже плитки.
ПВХ пленка для отделки бассейна
Если вы решите использовать для отделки бассейна ПВХ-плёнку, вам не понадобится выполнять для неё отдельную гидроизоляцию, но если вы опасаетесь, что она не выдержит воздействия воды, можете выполнить в один слой обработку стен бассейна жидким водоотталкивающим раствором. При этом старайтесь приобретать плёнку толщиной не менее 3 мм. Если же вы боитесь, что упадёте в бассейне, имеет смысл приобрести пленку с шероховатой поверхностью.
ПВХ-плёнки имеют самую разнообразную окраску, что можно учесть при отделке данного сооружения. Так, например, бывают плёнки, имеющие эффект мозаики, каменной крошки, с рисунками. То есть за относительно небольшие деньги вы сможете прекрасно отделать ваш бассейн, создав оригинальную ландшафтную композицию.
Схема монтажа теплообменника для бассейна
Кроме финишной отделки, по окончании строительства бассейна нужно будет установить оборудование по подаче и фильтрации воды, её очистке и подогреву. Только после этого можно будет считать процесс его возведения законченным.
Как сделать баню с бассейном
Процесс сложный. Мастера не советуют браться за него новичкам без необходимых знаний. Ниже разберем нюансы возведения бассейна при разных условиях.
На этапе строительства основного здания
Сложность, с которой придется столкнуться, ‒ обустройство отдельной канализации. Обычной сливной ямы будет недостаточно. А для этого придется запрашивать разрешение соответствующих служб.
Еще один момент, который решается до начала работ, ‒ форма, конструкция спусковой лестницы в бассейне. Ее можно сделать монолитной из степеней или же купить готовую металлическую и закрепить потом. Последний вариант более простой и дешевый.
Когда все нюансы предусмотрены, разрешения получены, можно приступать к возведению бассейна. Пошагово процесс выглядит так:
- Проводится разметка строительной площадки.
- Роется котлован. Копать вручную лопатой сложно – это займет много времени и сил. И для этого придется нанимать людей. Проще заказать спецтехнику.
- При достижении нужной глубины дно трамбуется. Сверху земли насыпается гравийно-песчаная подушка. Оптимальная толщина ‒ 15 см. Она трамбуется, увлажняется водой.
- Проводится укладка рубероида по дну и стенам котлована. Куски стелятся внахлест на 15‒20 см. Стыки, швы проходят горячим битумом, другим герметиком.
- Собирается опалубка из досок для заливки стен бассейна. Достаточно для внутренней части. В качестве наружной послужат стенки котлована. Для соединения досок подойдут гвозди, шурупы.
- Готовится раствор для заливки первого слоя на дно. Рекомендуемая марка цемента М-400. 1 часть цемента соединяется с 5 частями щебня и 3 частями песка. Воды должно быть не больше половины общего объема. Толщина слоя раствора ‒ до 15 см.
- После застывания первого слоя формируется армирующая сетка. Для этого прутки из стали диаметром 1 см связывают между собой проволокой или пластиковыми хомутами. Рекомендуемый размер ячеек – 15*15 см. Укладывают сетку на 5 см выше слоя застывшего бетона.
- Выполняется заливка второго слоя бетона на дно толщиной до 15 см.
- Проводится армирование стенок.
- Заливка стенок раствором. Выполняется за один раз для равномерного застывания. Чтобы четко рассчитать объем, нужно длину, толщину, высоту стен чаши умножить между собой.
- Как только слои бетона окончательно затвердеют, необходимо гидроизолировать пол. Подойдет плотный геотекстиль, полиэтиленовая пленка. Альтернатива ‒ оштукатуривание стенок влагостойкими составами.
Сверху штукатурки по желанию укладывается плитка или кусочки мозаики.
В построенном здании
Реализуется в виде готовой чаши из ударопрочного пластика овальной, квадратной, круглой и других форм. В комплекте поставляется все необходимое оборудование. Резервуар полностью герметичен. Монтаж специалисты могут сделать за день.
Нагрев воды в бассейне до нужной температуры осуществляется специальным ТЭНом.
На улице
В остальном порядок работ похож на установку стационарного бассейна при строительстве бани, как было описано выше.
Кратко последовательность работ следующая:
- Делается разметка. Роется котлован. Глубина котлована делается на 15 см больше, чем будет глубина резервуара.
- На дно насыпается гравий, трамбуется, увлажняется водой.
- Заливается первый слой раствора до 15 см.
- Формируется армировочная сетка. Сверху заливается второй слой бетона толщиной до 15 см.
- Собирается опалубка для стенок резервуара.
- Заливается бетон за один раз для стенок чаши. По возможности применяется вибромолот, чтобы удалить остатки воздуха из раствора. Альтернатива ‒ протыкать толщу в нескольких местах стальным прутком.
- Далее надо дать время бетону выстояться и полностью высохнуть, чтобы он набрал максимальную прочность.
- Укладывается гидроизоляция. Дешевле всего выстилать дно и стенки чаши плотной полиэтиленовой пленкой.
https://youtube.com/watch?v=VdjboODuXPQ
Для финишной отделки чаши применяется стеклянная мозаика, фарфоровая, керамическая плитка.
Строения на сваях
Модель, достаточно сложная для исполнения, — это бани на сваях. Применение свай вместо привычного жесткого фундамента более надежно и практично для владельца. Полностью соблюдаются правила технической и пожарной безопасности, строению придается красивый дизайн.







Однако, для подобной конструкции необходимо соблюдать ряд правил:
Оптимальный расчет веса всей бани и печи в особенности с учетом допустимой нагрузки.
Особое внимание при строительстве должно уделяться типу опор, их максимальному укреплению.

Отельный вопрос строительства – это монтаж печи с её оптимальной работой в дальнейшем.

Восточная баня в домашних условиях
В доме или просторных апартаментах и римская баня, и хаммам возводятся по индивидуальным проектам. Идеальной отделкой для них служат те же материалы, что и тысячелетия назад: мозаика или натуральный камень. Причем предпочтение отдается стеклянной мозаике, так как этим высоко гигиеничным материалом можно отделывать практически любые поверхности, включая сидения и лежаки. Также для этих целей подходит высококачественная керамическая плитка. Оборудование в высокой степени автоматизировано: парогенератор, системы обогрева и распыления ароматов и солей полностью скрыты от взгляда, а управление осуществляется с интерактивной панели.
Сауны фирмы Effegibi изготавливают из натуральной древесины таких пород как, ель, ольха, липа, кедр, хемлок, абаш. Сауны могут иметь различные варианты планировки, отделки. Довольно часто их изготавливают на заказ. В этом случае, заказчик может сам выбрать оптимальный для себя вариант планировки, расположение дверей. Сегодня компания представляет пять модельных линеек саун, которые отличаются по дизайну и размерам, но всегда связаны с традициями.
Также Effegibi предлагает разнообразные варианты хаммамов (паровых бань), которые позволяют превратить простую душевую кабину в самую настоящую турецкую баню. Сильная сторона этих моделей в том, что они предоставляют максимум возможностей по их установке, учитывая все технические аспекты. Кроме того, они оснащены множеством опций, имеют современный дизайн и выполнены из надежных материалов. Гибкая система заказов позволяет реализовать все пожелания клиентов по дизайну и обустройству хаммамов, служба планирования гарантирует максимальное эстетическое удовольствие и пользу от процедур. Генераторы пара с разными уровнями мощности, двери с различными вариантами покрытий, внутренне оснащение из тика или композитных материалов позволяет создать хаммам, идеально подходящий для каждого конкретного дома.
Особенности
Не каждая банная постройка способна вместить в себе бассейн
Ведь для его размещения важно изолировать стены, потолок и проводку от возможного контакта с водой. Невозможно установить такой водоем в уже готовую парилку
Такая задача должна стоять еще на этапе планирования, иначе подгонка резервуара под постройку обойдется в крупную сумму.
Проект бани с бассейном под одной крышей должен учитывать большие объемы воды. Поэтому необходимо полностью подготовить систему водоснабжения перед установкой купели. Обычный слив, который делается под фундамент для душевой кабины, тут не подойдет. Здесь необходимо оборудовать полномасштабный слив, сделав его по всем правилам. Но даже правильно установленное канализационное устройство не всегда способно выдержать большие объемы воды.


Помимо прочего, подобные проекты должны учитывать вопрос о размещении инженерных сетей. В первую очередь – это осветительные, фильтрационные, вентиляционные и водоотводящие системы. Нередко парную выстраивают рядом с каким-либо водоемом. Это значительно экономит средства и силы на постройку собственного бассейна. Но возвести баню вблизи озера не всегда возможно, поэтому приходится все брать в свои руки.

Бассейн в бане обладает следующими преимуществами:
- он позволяет принимать прохладные водные процедуры сразу после выхода из парилки;
- его можно использовать автономно;
- он благотворно влияет на организм человека;
- его наличие украшает дизайн интерьера.


Недостатки и возможные проблемы наличия водоема в парной появляются в зависимости от типа постройки. Например, мобильный или разборный бассейн можно использовать вне помещения только летом. Если же установить его внутри бани, то в холодное время года комнату придется отапливать. К тому же существенно повысится влажность, что плохо скажется на деревянных конструкциях. Расположение мобильного резервуара потребует дополнительной защиты постройки и установки вентиляционных систем. Все это приведет к большим финансовым расходам.
Стационарные и гидромассажные бассейны тоже имеют значительные минусы. Для их проектирования и строительства понадобится много денег. А также их наличие увеличит эксплуатационные затраты в виде отопительных и электрических расходов.


На первый взгляд кажется, что минусов у проектов банных построек с бассейном больше, чем плюсов. Однако все они имеют преимущественно материальный характер. Тогда как достоинства приносят моральную и эстетическую пользу.
Возведение стен
Как правило, для того чтобы построить стены своими руками используют силикатный или красный кирпич. Чтобы рассчитать сколько необходимо приобрести кирпича следует произвести нехитрые математические действия: высота и ширина стен делится на высоту и ширину кирпичных блоков. Для удобства все необходимые чертежи будущего строения должны быть под рукой.
Рассмотрим различные варианты строительства стен:
- Стены, в которых предусмотрена воздушная перегородка, толщиной в 60 мм;
- С теплоизоляцией в промежутке между внутренними и внешними рядами;
- Стены, в которых не сделана воздушная перегородка, с теплоизоляцией по внутренней стороне стен.
Стены, в которых изнутри сделана воздушная перегородка с теплоизоляцией, считаются наиболее бюджетным вариантом. Кирпича на такие стены уйдет меньше, однако на качество конструкции это не повлияет, но это только при выполнении качественной перевязки.
Для строительства своими руками цоколя бани и части, что находится выше, обычно применяют различные виды кирпича: полнотелый и пустотелый, соответственно. Что касается раствора, то его рекомендуют замешивать из песка зернами от 1 мм до 3 мм, цемента, воды и извести. Для удобства, в емкости для разведения раствора отмечается необходимый уровень, и после этого добавляется вода.
Предлагаем ознакомиться: Вентиляция в бане своими руками: варианты правильной организации
В конце возведения стен кладка оборудуется штырями, которые нужны для крепления брусьев на стены. Перекрытие кладется прямиком на стены, углубляясь в специально подготовленные гнезда. Балки перекрытия с торцов оставляются открытыми, однако расстояние между ними и кирпичной кладкой лучше заделать теплоизоляцией.
Проекты бань из бруса
Разработка проекта — важный этап строительства, во время которого необходимо продумать каждую деталь, которая впоследствии может стать достоинством или недостатком.
Одноэтажные бани с верандой
Если вы ограничены в финансовых возможностях, то вам стоит выбрать именно этот вариант. Из особенностей этих сооружений стоит выделить их относительную компактность, простую форму наружных стен и такое же расположение внутренних помещений, которые представлены парилкой, моечной и комнатой отдыха.
После того как вы подготовите материал, вам необходимо, согласно проекту, построить квадратную коробку, предварительно проделав в ней проемы под двери и окна. Это сделать довольно сложно без специальных навыков и навыков работы с деревом. Там, где будет располагаться вход в баню, нужно установить крыльцо или крытую веранду. Последняя может быть как изготовлена из профилированного бруса, так и быть каркасной.
Одноэтажные бани с открытой террасой
Этот вариант очень популярен у многих индивидуальных застройщиков, которым недостает на участке бани из бруса. Следуя этой схеме строительства, можно получить современное строение, которое отлично справится с ролью летнего место отдыха. В процессе реализации этого проекта бани у вас обязательно возрастут расходы на строительство, да и времени и сил на работу с материалом уйдёт достаточно. Но в итоге вы сможете создать на своем участке более привлекательной в плане эстетических свойств строение, которое порадует вас и улучшенными функциональными возможностями.
Пару слов нужно сказать о террасе — она может быть выполнена в открытом или закрытом варианте с кровельным покрытием. Окончательное решение вы должны принять самостоятельно, опираясь на свои собственные предпочтения и вкус. Лучше всего, если вы выберете закрытый вариант. Тогда ваша баня приобретет более гармоничный и законченный вид. К тому же у вас появится более уютное и спокойное место для отдыха, и вам не придется беспокоиться о возможных осадках. Стоит отметить, что пользоваться такой баней вы сможете в любое время суток.
https://youtube.com/watch?v=xV1Y2FKcyQs
Проект банного комплекса
Строительство здания с сауной и полностью оборудованной инфраструктурой для плавания, отдыха на воде, принятия водных процедур обойдется в немалую сумму, поэтому важно правильно выбрать проект всей постройки. Переделка и перепланировка, достройка всегда обходится дороже, чем основное строительство
Составление проекта банного комплекса с бассейном несколько отличается от планирования обычной бани. Минимальный перечень задач, которые приходится решать при проектировании, выглядит следующим образом:
Выполняется общая схематическая планировка здания с детализацией размещения тяжелой чаши для плавания и принятия водных процедур, парилки, моечного отделения, комнаты отдыха и подсобных помещений;
Определяются размеры и форма фундамента под комплекс с бассейном. Из-за высокого давления на грунт потребуется предпринять ряд мер для усиления устойчивости
Важно, чтобы многотонная чаша с водой не повлияла на конструкцию всей банной постройки;
Планируются форма и размер коробки здания будущего банного комплекса, выделяется территория и место под бассейн, определяется его форма и размеры, тип – открытый или закрытый, и способ защиты от внешней среды и непогоды;
Четвертым этапом выполняется чистовая планировка банного комплекса. По сделанным ранее черновым эскизам строения с бассейном проектируется расположение парилки, сауны, мойки и комнаты отдыха.
В последнюю очередь разрабатываются коммуникации, отопление, водоснабжение и отделка банного комплекса. Разумеется, все перечисленные этапы проекта под силу выполнить только специалистам, на долю заказчика отводится лишь выбор планировки. Будущий владелец банного комплекса сможет выбрать размеры бассейна, его расположение и общую структуру помещения. Например, обустроить чашу, площадку для отдыха внутри здания, или вынести бассейн под крытый навес.

Проект и планировка бани с террасой 50 кв. м
Это проект небольшой, но вместе с тем уютной бани. Такая постройка может считаться частью усадьбы или использоваться в качестве отдельного элемента как самостоятельный дом, необходимый для релаксации.
Вход предваряет терраса, размером в 9,8 кв. м. Затем идет тамбур 2,3 кв. м.
Далее идет проход в комнату отдыха (15,9 кв. м).
Планировка бани 50 кв.м.
С комнаты отдыха проход ведет в помывочную (7,8 кв. м.), а потом в парную (7,8 кв. м.). Все комнаты расположены таким образом, что лишь минимальное количество тепла покидает последнее помещение.
Большое внимание уделяется системе отопления и освещения. Окна располагаются в бильярдной, комнате отдыха и самое маленькое в раздевалке
Следовательно, даже в дневное время будет ощущаться нехватка в освещении. Такая проблема будет решена с использованием подсветки в нижней части потолка.
Особенности планировки
Для того чтобы получить комфортные условия для отдыха в бане потребуется учитывать определенные особенности.
- Ни в коме случае в бане не должно быть сквозняков. В данном проекте такая проблема решается с возведением тамбура. Для большей эффективности стоит располагать двери перпендикулярно по отношению друг к другу.
- Дверь в баню обязательно должна быть низкой и узкой. Это поможет сохранению тепла в парной, даже во время сильных морозов зимой.
- Размер допустимых окон в бане может быть 40х60 или 70х80.
- В промывочной стоит позаботиться об окне над уровнем головы стоящего человека.
- Если помимо печи в бане не планируется использовать отопление, то она должна быть установлена таким образом, чтобы она могла обогревать сразу несколько помещений.
- Располагать баню лучше всего на небольшом возвышении, чтобы грязная вода самотеком уходила из строения.
- Все материалы, которые будут предназначаться для строительства, предварительно нужно просушить на солнце для того, чтобы степень влажности не была ниже 8%.
- Необходима четкость и качество вентиляционной системы.
Бильярд в бане
Основные характеристики деревянной бани:
- Конструкция: баня производится из оцилиндрованного бревна;
- Материал для фундамента: монолитный железобетон;
- Материал для наружных стен: оцилиндрованное бревно;
- Материал для перекрытий: деревянные балки;
- Материал для крыши: дерево;
- Материал для кровли: металлическая черепица.
Требования пожаробезопасности для бани
- Пространство, которое располагается ниже уровня пола, обязательно должно быть покрыто экраном из металла или кирпича. Это необходимо в случае, если туда попадет горячий уголек либо искра пламени.
- Под металлической печью, пол должен быть изолирован несколькими рядами кирпича. Укладывать его нужно на асбестовый картон или двойной войлок, который предварительно требуется пропитать глинистой смесью.
https://youtube.com/watch?v=qHvPO3nQqc8
Проект баня с бассейном: какие нюансы нужно учесть?
Важно определиться с назначением бассейна и с тем, кто им будет пользоваться. К примеру, если у вас маленькие дети, то нужно задуматься о том, чтобы сделать неглубокий бассейн или с несколькими зонами: взрослой и детской
Глубокий бассейн также не подойдет для пожилых людей.
Для молодых и взрослых людей как раз более предпочтительным будет именно глубокий бассейн. Многие любят после похода в парную с разбега прыгать прямо в бассейн с прохладной водой.
При установке бассейна нужно хорошо продумать канализационную и водопроводную системы. Здесь нельзя обойтись обычным сливом, как в моечной. Бассейн содержит большое количество воды, поэтому должна быть хорошо оборудована дренажная система.
Все помещения, которые находятся рядом с бассейном, должны иметь надежную гидроизоляцию, также от влаги нужно защитить электропроводку.
Необходимо определиться и с типом бассейна. Бассейны бывают нескольких видов: заглубленные, полузаглубленные и наземные. Самым долговечным вариантом являются заглубленные и полузаглубленные. Но в том случае, если почва нестабильна, или близко к поверхности находятся грунтовые воды, то лучше выбрать наземный бассейн.

Русская
В русской бане, как правило, средняя температура достигает 45-70 °С. В связи с этим пар конденсирует и оседает на теле, благодаря чему оно очищается от разного типа загрязнений. Из-за горячего влажного воздуха происходит прогрев всего тела и организма в целом.
Русская парная по-черному
Конструкция состоит из трех основных частей:
- предбанник – может быть холодного типа и предназначаться для раздевания и одевания, размещения одежды. Теплый предбанник предназначен для проведения свободного времени и общения. В первом случае оборудован только вешалками, полочками и шкафчиками, во втором – дополнительно может быть установлен стол, стулья, диваны, шкафчики для хранения посуды, предназначенной для чаепития. В отдельных случаях устанавливаются телевизоры, а также другая техника;
- парная – здесь происходит основной процесс паровой обработки тела. Она самая сложная по конструкции, и в обязательном порядке там должна быть печь, которая прогревает камни, которые впоследствии обдаются жидкостью и образуют пар. Для удобного размещения посетителей обязательно устанавливаются лежаки, или, как их называют по-другому, полки;
- помывочная – предназначена для купания с применением химических средств личной гигиены, поэтому там располагаются лавочки для размещения тазов и ведер, но в современных условиях такие помещения обустраивают ванной или душевой кабиной. Также там должны быть шкафчики и полочки для размещения емкостей с мылом, гелями, шампунем и другими средствами.
Расчет необходимой площади
1
4




https://youtube.com/watch?v=oiZ9O9K3Yts
Хаммам
Интерьер хаммама в современном стиле
Хаммам отличается своей большой площадью и наличием многих парных. Конечно же, как и аналоги, она включает предбанник, который служит раздевалкой. Температура воздуха здесь составляет 28-30 °С. Далее размещен зал для различных процедур. Показатели в нем составляют 40-50 °С. Хаммам обустроен полками. Еще одно из отличий – использование мрамора, именно из него изготовлены лежаки. Как правило, этот зал имеет круглую форму.
Цветная мозаика в дизайне турецкой парной с бассейном
Бирюзовый цвет хаммама с эффектной неоновой подсветкой
После главного зала расположена парилка. Ее обогрев проводится при помощи труб, которые расположены под лежаками и за стенами. Что же касается наличия пара, то для этого ранее устанавливались кипящие котлы, но сегодня с этой целью применяют специальное электрическое оборудование – парообразователи.
Хаммам своими руками
Уютный интерьер турецкой бани
Позолота в оформлении интерьера
При составлении проекта для самостоятельного возведения хаммама вы можете исключить или добавить что-то другое. Важную роль в хаммаме играет создание внутренней атмосферы. Для отделки лучше всего подойдет мрамор. Также вы можете разместить в разных частях бани восточные аксессуары.
Заметьте, что хаммам можно устанавливать не как отдельно стоящее сооружение. На сегодняшний день технологии позволяют оборудовать под него любую часть в доме и даже в квартире.





